杏吧论坛

产品|连成集团一种定制高进口压力单级循环泵

发布日期:2022-12-15浏览次数:

摘要:

本文介绍了一种定制高进口压力单级循环泵的设计应用,包括泵体、泵盖承压件设计,材质选用;轴封结构设计,平衡型机械密封应用等。突出了高进口压力,丰富了单级循环泵产品选型应用。

关键词:循环泵 进口压力 平衡型机封

● 引言

空调冷水系统利用循环泵将冷水从制冷机房输送到各空调设备,以实现空调冷热量的交换、转移,达到空气调节的目的。循环水泵是联系制冷主机和房间用冷设备的纽带,为谁系统的循环提供动力,是空调系统的重要组成部分。

1.常规循环泵使用条件:

转 速:2960r/min, 1480r/min

电 压:380V

口 径:80~500mm

流量范围:50~1200m3/h

扬程范围:20~50m

介质温度:-10℃~80℃

环境温度:最大+40℃;海拔高度小于1000m;相对湿度不超过95%。

2.常规循环泵泵体承压:

图片

3.常规循环泵材质:

泵体——铸铁/球铁(HT200/QT500-7);

泵盖——铸铁/球铁(HT200/QT500-7);

叶轮——铸铁(HT200);

泵轴——45#钢镶套(连成专利);

机封——M7N系列(非平衡型)。

4.M7N系列机械密封技术条件:

密封腔压力:0~1.5 MPa;

密封腔温度:-30℃~180℃;

线速度:≤20m/s;

介质:水、污水、油类及其他弱腐蚀性液体;

静环代码:G9。

载荷系数K>1,机封为非平衡型机封,非平衡型机封当压力大于一定限值,密封面间的液膜就会被挤出。在丧失液膜润滑及高负荷的作用下,密封端面会很快损坏。因此非平衡型机封一般可用于低压场合。

● 内装式非平衡型机封:

图片

5.常规循环泵结构图:

图片

6.高进口压力循环泵设计:

在高层建筑中的循环水泵,必须考虑泵体所承受的静水压力,并提出对水泵的承压要求;同时水泵选定后需符合系统的工作压力是否满足系统设置的需要,如有超过系统内部的承压能力,应重新设计承压部件和轴封系统。如:

● 性能参数要求:

转 速:2960r/min, 1480r/min

电 压:380V

口 径:80~500mm

流量范围:50~1200m3/h

扬程范围:20~50m

介质温度:-10℃~80℃

环境温度:最大+40℃;海拔高度小于1000m;相对湿度不超过95%。

高进口压力循环泵泵体承压

图片

● 设计方案:

进口压力1.6 MPa,泵所承受的静水压力较大,承压件泵体、泵盖需增加强度设计,采用ZG230-450材质,进出口法兰按2.5MPa压力等级设计;采用博格曼H7N平衡型机封,并设计相应的加长轴伸及机封轴套结构,平衡型机封能用于各种压力场合。

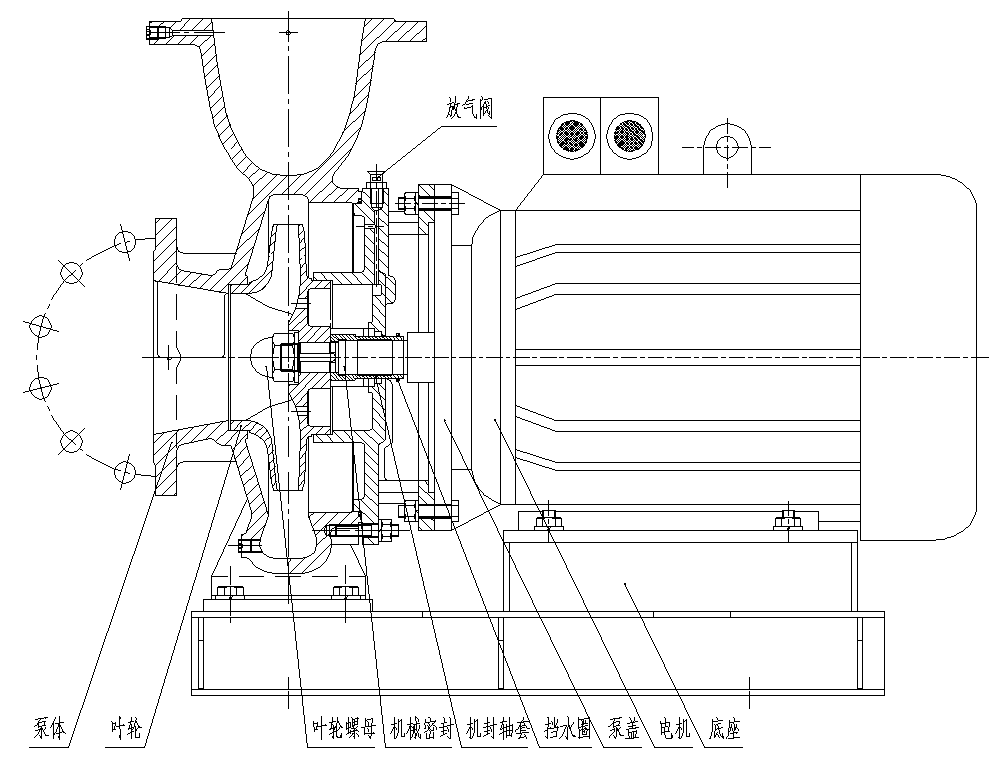
● 高进口压力循环泵结构图:

图片

7.定制循环泵材质:

泵体——铸钢(ZG230-450);

泵盖——铸钢(ZG230-450);

叶轮——铸铁(HT200);

轴伸——20Cr13;

机封轴套——20Cr13;

机封——H7N系列(平衡型)。

8.H7N系列机械密封技术条件:

密封腔压力:0~2.5 MPa;

密封腔温度:-30℃~180℃;

线速度:≤20m/s;

介质:水、污水、油类及其他弱腐蚀性液体;

静环代码:G9。

载荷系数K<1,机封为平衡型机封,平衡型机封能用于各种压力场合,也适用于润滑性能差、低沸点、易汽化介质及高速工况。

● 内装式非平衡型机封:

图片

小结

定制高进口压力单级循环泵优点:

1、采用电机直接连接,机泵轴完全同心,振动小、噪音低。

2、加长轴和特殊结构配置的SKF轴承,运行稳定可靠。

3、采用高强度铸钢材质的泵壳体设计,充分满足承压需求。

5、巧妙的轴封设计确保泵的无泄漏,长寿命运行,节约运行管理费50%-70%。

6、独特的安装结构大大缩小了泵的占地面积,节约建设投资40%-60%。

文章来源连城集团公众号